Calas +

Elevation of a residential and commercial spaces

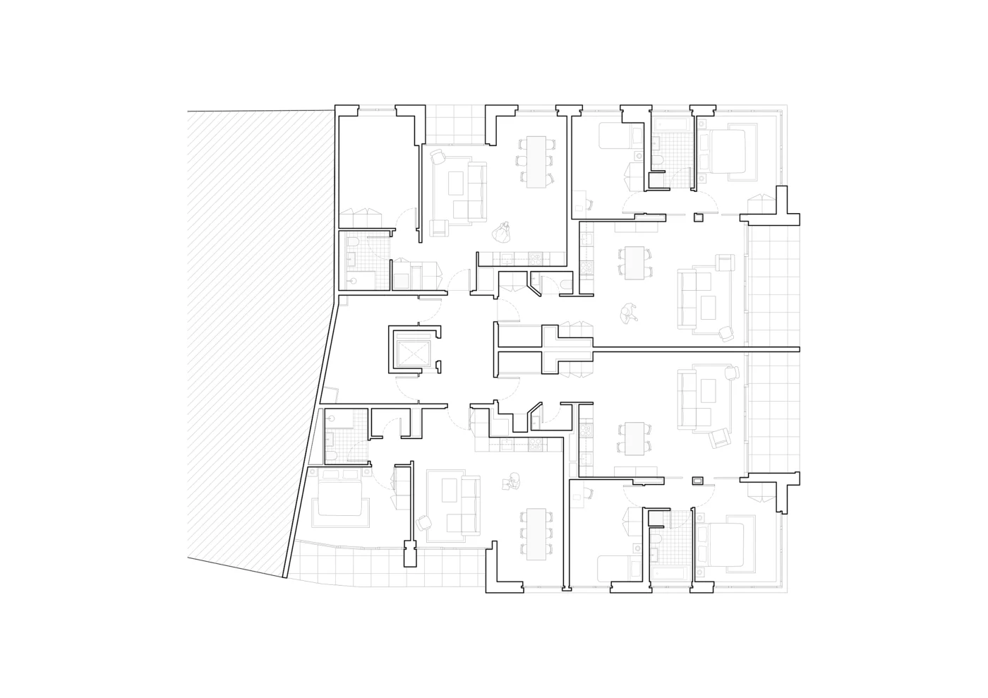
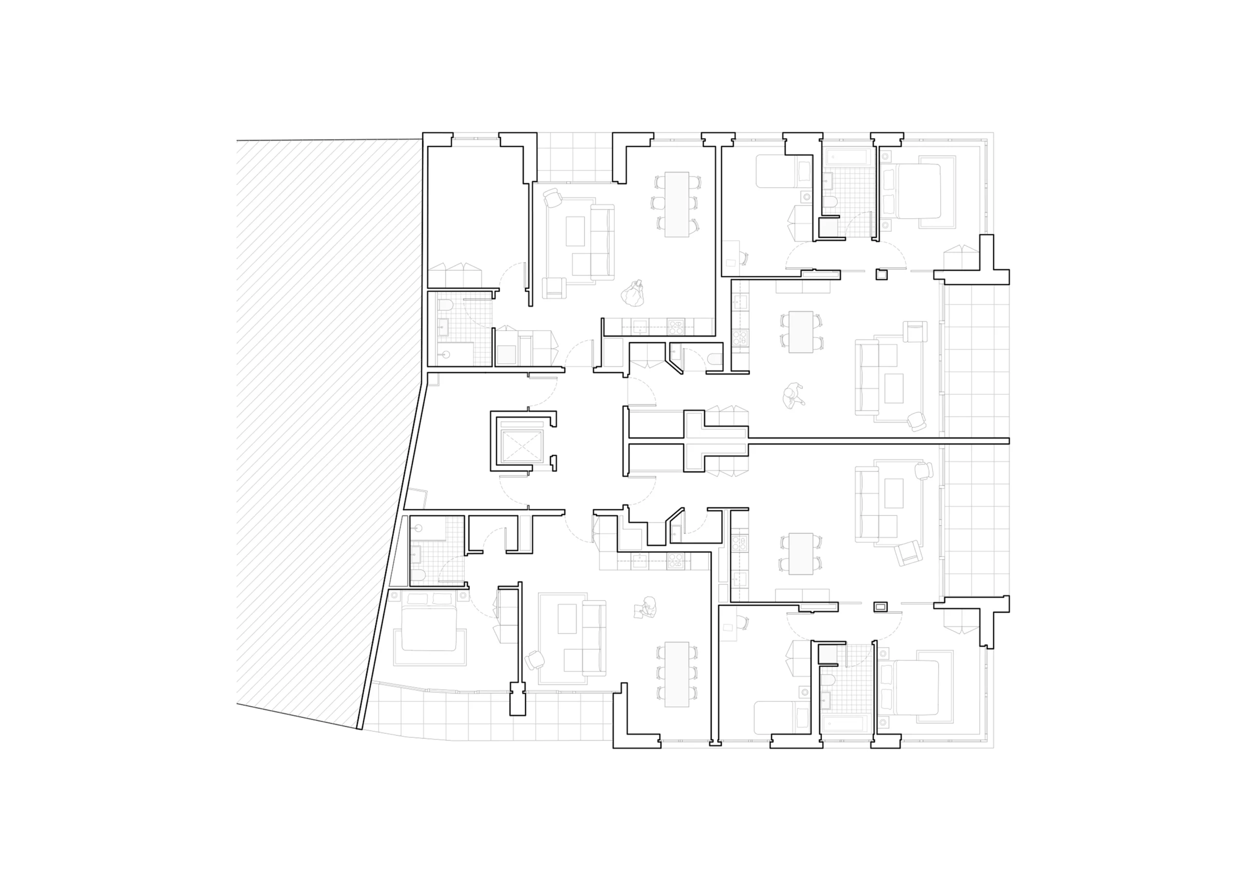
The project includes the addition of two floors and an attic, along with the complete renovation of the existing apartments. On the lower levels, some six-room units are redesigned and subdivided into smaller apartments to meet current housing needs.

Structural and seismic reinforcements make the vertical extension possible, bringing the total to 34 apartments, while the ground floor is dedicated to various commercial activities. The exterior spaces are designed to integrate seamlessly with the overall architectural composition of the project.

The vertical extension is designed in continuity with the existing building. The treatment of the slabs in tone-on-tone creates a subtle and harmonious dialogue with the surrounding neighborhood. Large corner glazing provides generous natural light and enhances the spatial quality of the new apartments.
The works are carried out on an occupied site. In collaboration with the property management, Ganz Muller oversees construction coordination and communication with the tenants, ensuring smooth management of all interventions throughout the project.

Category
Collective housing
Status
Completed Project
Date
2019-2021
Photo credits: Thinkutopia
Offcanvas