Terrassière +

Surélévation en bois et rénovation d'un immeuble du XIXème siècle

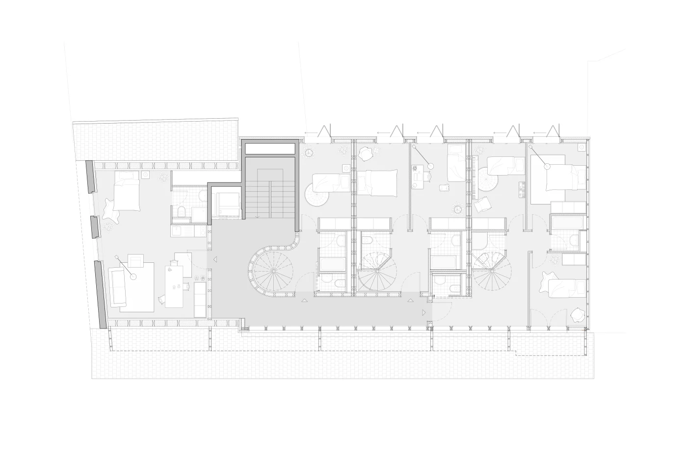
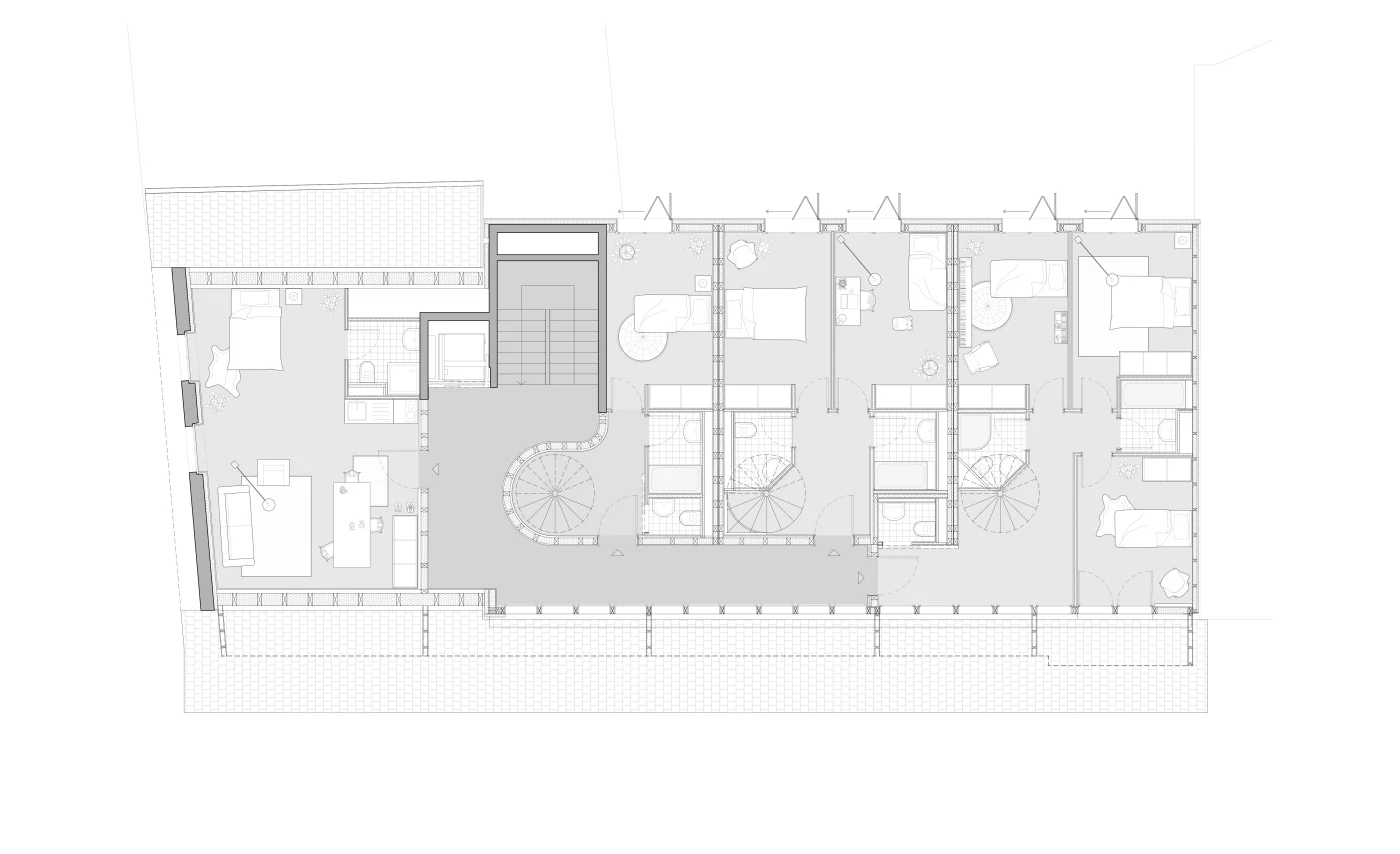
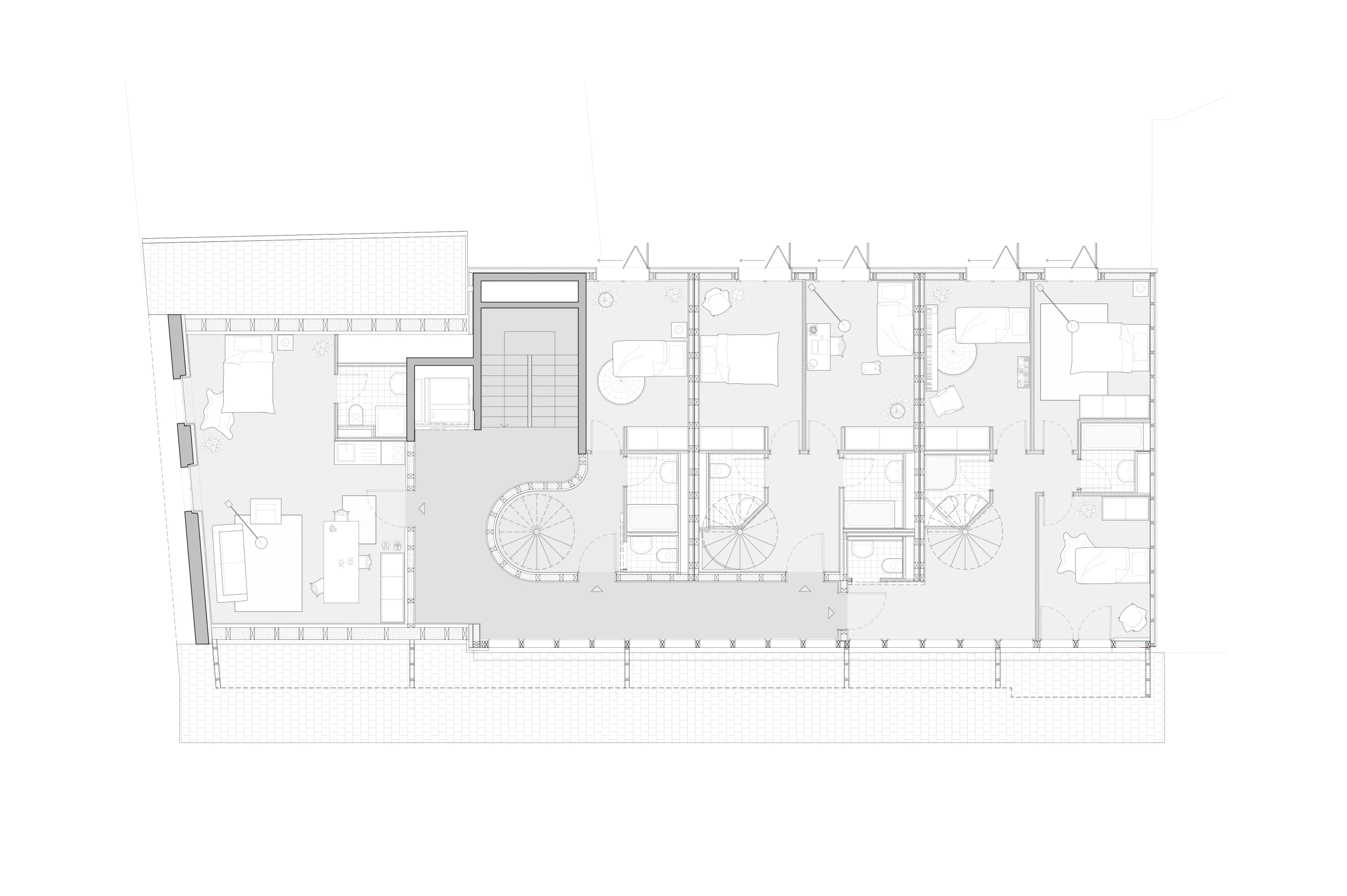
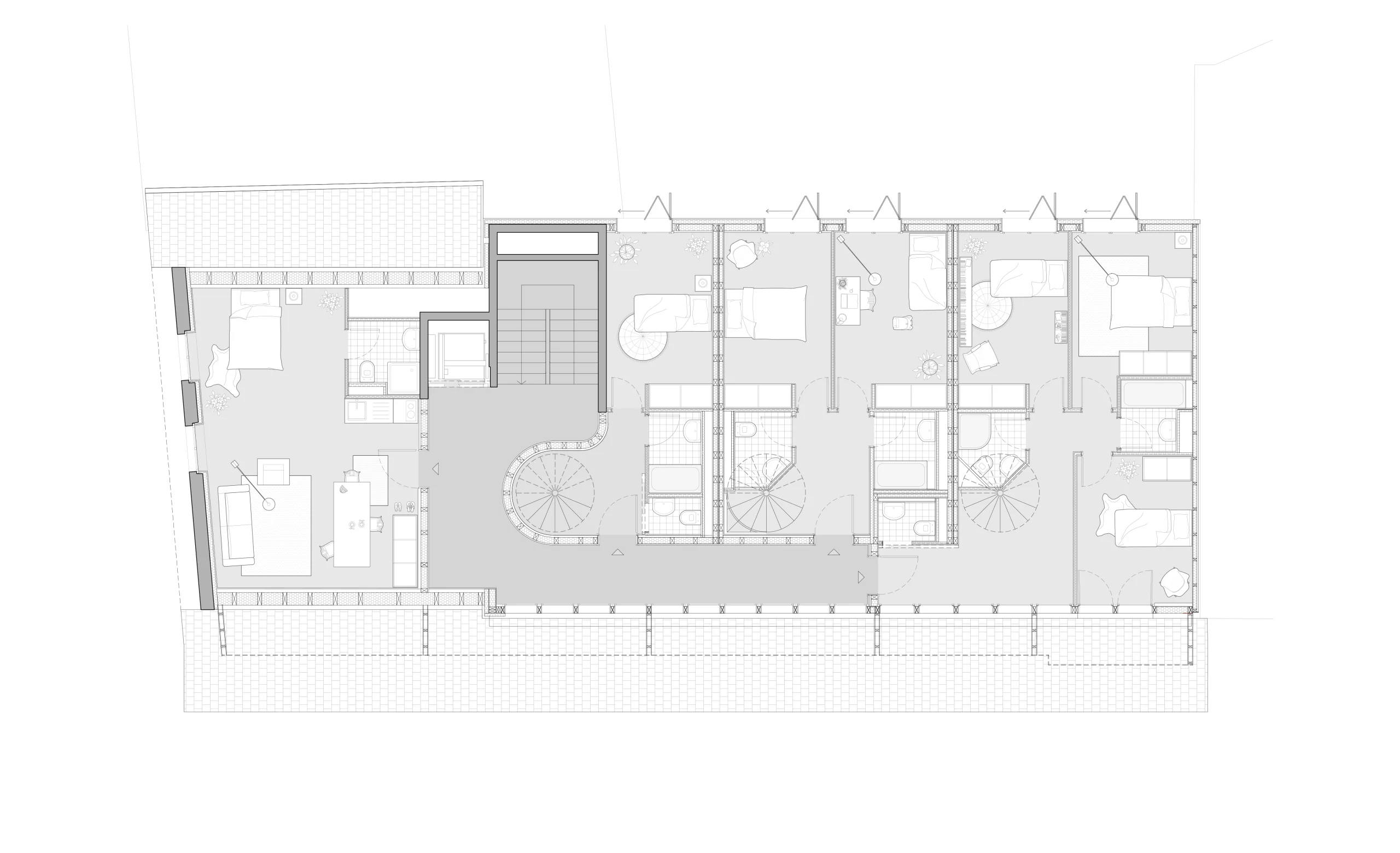
Le bâtiment situé rue de la Terrassière présente un état vétuste. Le projet comprend une surélévation ainsi qu’une rénovation complète de l’ensemble du bâtiment.

La surélévation, réalisée en structure bois, se distingue par un revêtement en lames verticales et par des volets métalliques, dont les décors s’inspirent de ceux des bâtiments voisins, assurant ainsi une intégration dans le tissu urbain existant.

L’intérieur du bâtiment est entièrement repensé afin d’offrir des logements contemporains et fonctionnels. Chaque étage propose une typologie variée d’appartements — du studio au 5 pièces. Les logements situés dans la partie surélevée sont conçus en duplex et bénéficient d’une terrasse privative sur le toit.

Catégorie
Logements collectifs
Statut
Projet réalisé
Crédits photographiques: L. Fascini
Offcanvas